Overslaan naar inhoud

Warmte in Vorm

Voor deze klant ontwikkelt Smaak maatgerichte haardconcepten die verder gaan dan het integreren van een vuurhaard alleen. Elk ontwerp vertrekt vanuit de identiteit van het merk en vertaalt die naar een ruimtelijk totaalbeeld waarin architectuur, maatwerk en beleving samenvallen tot één helder statement.
30 december 2025 in
Warmte in Vorm
Matthys Sandrino, Sandrino Matthys

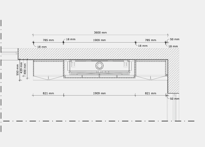
De haardwand wordt benaderd als een sculpturaal element binnen de leefruimte, waarin haard, opbergvolumes en media-elementen naadloos worden samengebracht tot één samenhangende compositie. Door deze integrale aanpak ontstaat een krachtig centraal element dat sfeer, functionaliteit en rust verenigt.

 

 










Elk concept wordt afgestemd op de specifieke context van de woning, met aandacht voor maatvoering, materialisatie, lichtwerking en technische integratie. Maatwerk maakt het mogelijk om verhoudingen, indeling en afwerking exact te laten aansluiten op ruimte en gebruik, zodat het geheel als vanzelfsprekend deel wordt van het interieur.

 















Smaak vertaalt deze uitgangspunten in uitgewerkte ontwerpen en tekeningen volledig in lijn met de huisstijl van het bedrijf. Zo ontstaat per project een unieke haardwand die niet alleen warmte brengt, maar ook fungeert als architecturaal ankerpunt en als verbindend element tussen wonen, kijken en opbergen — een totaalervaring waarin techniek onzichtbaar blijft en het ruimtelijke gebaar centraal staat.